Ditulis oleh: Yayan Indrayana*
Begandring.com — Bahwa Grahadi terbakar, semua pihak menyayangkannya. Namun, seberapa penting peran dan keberadaannya bagi Jawa Timur, khususnya Surabaya? Seperti apa sebenarnya sejarah Gedung Negara Grahadi?
Tim Begandring Soerabaia mencoba menelusuri jejak sejarah dan perkembangan arsitektur Grahadi dari masa ke masa—baik dari sisi kawasan maupun perubahan bentuk bangunannya.
Beberapa waktu lalu, salah satu gedung cagar budaya yang menjadi rumah dinas Gubernur Jawa Timur di Kota Surabaya mengalami musibah kebakaran. Gedung tersebut adalah Gedung Negara Grahadi, tepatnya pada bagian sayap barat.
Peristiwa ini memunculkan beragam tanggapan dari masyarakat. Ada yang menyesalkan mengapa bangunan cagar budaya bisa ikut terbakar saat aksi demonstrasi. Ada pula yang mempertanyakan lemahnya pengamanan di kawasan gedung negara sehingga api dapat melalap sebagian bangunan dalam waktu singkat. Tak sedikit pula yang berpendapat bahwa gedung yang terbakar bukanlah bangunan utama, sehingga kerusakan tersebut dianggap tak terlalu berpengaruh terhadap nilai historis keseluruhan kompleks Grahadi. Bagaimana kita mesti memahaminya?
Dari Tuin Huis ke Resident Huis
Pada awalnya, bangunan ini dikenal sebagai Tuin Huis atau “Rumah Taman”. Seiring waktu, namanya berubah menjadi Resident Huis (Rumah Residen), mengikuti perubahan fungsi dan peranannya.
Gedung Resident Huis dibangun pada akhir abad ke-18. Berdasarkan sejumlah sumber, bangunan ini berdiri pada tahun 1796 sebagai kediaman Dirk van Hogendorp, penguasa wilayah ujung timur Hindia Belanda kala itu.
Von Faber dalam Oud Soerabaia menyebut bahwa rumah Dirk van Hogendorp dibangun pada 1795, berdiri di tepi sungai yang jernih dengan taman yang indah—karena itu disebut Tuin Huis.
Dalam peta bertahun 1787, yang menggambarkan Surabaya secara relatif detail, sudah tampak kawasan-kawasan penting kota. Di peta tersebut, bangunan penting ditandai dengan massa berwarna merah muda. Di antara yang tergambar adalah kawasan Eropa di sekitar Jembatan Merah (A), Gedung Setan di sisi selatan (B), dan area Grahadi (C).
Bentuk massa bangunan di kawasan Grahadi pada peta itu belum seperti yang kita kenal sekarang—kemungkinan masih berupa Tuin Huis, belum Resident Huis. Peta ini menunjukkan bahwa kawasan Grahadi telah menjadi area penting sejak akhir abad ke-18, terbukti dengan dicantumkannya dalam peta kota.
Perbedaan antara tahun pembangunan menurut catatan Dirk van Hogendorp (1795) dan tahun peta (1787) belum dapat dipastikan. Belum diketahui apakah bangunan yang tergambar di peta tersebut berada di lokasi yang sama dengan Grahadi sekarang.

(Peta Surabaya tahun 1787, sumber: nationalarchief.nl)
Transformasi Arsitektur
Jejak visual Grahadi dapat ditelusuri melalui sejumlah litografi, peta, dan sketsa dari masa ke masa. Salah satu gambar tertua berasal dari 1805 (gambar A), memperlihatkan bangunan utama dua lantai di tengah kawasan, dengan atap mansard khas arsitektur Belanda.

Sketsa/Litografi Gedung Grahadi, 1805, sumber: nationalarchief.nl
Empat tahun kemudian, ilustrasi yang dibuat oleh C. Colen (1809) menampilkan komposisi bangunan utama dua lantai dan bangunan sayap satu lantai di timur dan barat (gambar B dan C). Ketiganya memiliki atap bertumpuk dengan dua sudut kemiringan berbeda. Gambar ini penting untuk memahami perubahan arsitektur yang terjadi pada masa berikutnya.

Sketsa/Litografi Gedung Grahadi, 1805, sumber: nationalarchief.nl
Perubahan besar terjadi pada masa pemerintahan Daendels. Ia memerintahkan agar gaya arsitektur Grahadi diubah dari Oud-Holland Stijl menjadi Empire Style, gaya yang dianggap lebih mewah dan melambangkan citra istana kerajaan. Daendels ingin bangunan ini menyerupai istana di Prancis, meski tidak ada catatan pasti istana mana yang menjadi acuannya.
Perubahan ini menandai munculnya pengaruh Empire Style di Surabaya—dan Grahadi bisa disebut sebagai salah satu pelopornya.
Salah satu gambar yang kemudian menunjukkan perubahan bentuk dari Gedung Grahadi adalah sketsa pada tahun 1830, di mana bentuk bangunan tengah sudah mengalami perubahan. Termasuk orientasi yang diperkirakan juga mengalami penyesuaian dengan adanya jalan baru di sisi selatan bangunan yaitu jalan menuju kawasan rumah sakit militer Simpang.

Sketsa/Litografi Gedung Grahadi, 1830, sumber: nationalarchief.nl
Pada kisaran tahun yang sama, pada peta Surabaya tahun 1825 dan peta tahun 1866 juga bisa dilihat bagaimana komposisi bangunan di kompleks Residenthuis (Grahadi) ini. Bangunan utama tetap di tengah dengan bangunan sayap sudah ada di sisi timur dan barat. Selain itu, di kawasan ini juga terbangun taman kota besar yang kemudian disebut Simpang Tuin (Taman Simpang).

Grahadi pada Peta Surabaya tahun 1825 dan 1866. Sumber: nationalarchief.nl
Foto-foto dari 1880–1884 karya Herman Salzwedel memperlihatkan Grahadi dari sisi utara—tepat di tepi Sungai Kalimas dengan jarak sempadan hanya sekitar dua meter. Dalam foto tersebut, taman luas di sisi selatan tampak rapi dan terawat.

Foto Gedung Grahadi dari sisi utara (area dekat Sungai Kalimas). Sumber: KITLV media

Kawasan Residenthuis oleh Herman Salzwedel pada tahun 1884. Sumber: Rijkmuseum
Foto bangunan utama Gedung Grahadi yang diambil oleh Herman Salzwedel pada tahun 1884 di atas menunjukkan betapa Grahadi mempunyai taman yang indah dan luas di sisi selatan yang menghadap jalan Simpang. Detail pagar, jendela, pintu, dan kolom masih sama seperti yang kita lihat hari ini. Adapun bangunan di sisi selatan Grahadi yang tampak pada foto kini sudah tidak ada; lokasinya kini menjadi Kantor Pos Simpang dan SDN Kaliasin.
Abad ke-20
Perubahan yang terjadi pada Gedung utama Grahadi salah satunya terjadi di periode awal 1900-an, di mana ada sedikit perubahan bentuk pagar di teras lantai dua. Penambahan lain pada periode ini adalah fungsi peneduh pada area teras berupa kanopi pada bagian atas/lantai dua dan bagian bawah.

Foto Residenthuis (Grahadi) pada awal 1900-an. Sumber: wereldmuseum.nl
Selama periode 1905 hingga 1930 struktur kawasan Simpang terjadi beberapa perkembangan terutama kaitannya dengan pengembangan kawasan Ketabang di sisi utara yang menimbulkan jaringan baru sirkulasi kota menuju Kantor Balaikota.
Tahun 1930 disebut sebagai salah satu era penting bagi perkembangan kota Surabaya. Kawasan Grahadi di wilayah Simpang apabila kita telisik dari pola kawasan menjadi pola yang bertahan hingga saat ini. Keberadaan Grahadi, Kroesen Park (Taman Apsari), Simpang Societet (Balai Pemuda), dan Rumah Sakit Simpang menjadi tetenger kota sekaligus pusat pelayanan kota Surabaya.

Peta Kawasan Grahadi tahun 1905 dan 1930. Sumber: nationalarchief.nl
Pada foto tahun 1930-an, tampak perubahan besar pada pagar teras lantai dua yang kini berbidang datar. Bentuk ini masih bertahan hingga sekarang, hanya saja pada masa pasca-kemerdekaan, bidang tersebut ditambahkan relief perjuangan.

Foto Residenthuis (Grahadi) pada tahun 1930-an. Sumber: wereldmuseum.nl
Foto udara tahun 1947 memperlihatkan arak-arakan perayaan ulang tahun Ratu Belanda yang melewati kawasan Grahadi dan Taman Apsari. Setelah kemerdekaan, Grahadi beralih fungsi menjadi Gedung Negara dan kantor Gubernur Jawa Timur.

Foto Kawasan Residenthuis (Grahadi) pada tahun 1947, sumber: KITLV Media
Bangunan Grahadi ini kemudian tidak hanya penting di era pendudukan Belanda, namun juga menjadi area dan bangunan penting di era pasca-kemerdekaan RI. Di era Presiden Sukarno, Grahadi menjadi lokasi berbagai kegiatan politik dan pertemuan massa.
Pola ruang terbuka yang menyatu dengan Taman Apsari menjadikannya tempat ideal untuk berkumpul di jantung kota.


Foto Grahadi di era Presiden Sukarno tahun 1952 (atas). Demonstrasi terjadi antara 1950-an–1960-an (bawah). Sumber: Disperpusip Provinsi Jawa Timur
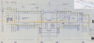
Sejak masa Gubernur Samadikoen (1949–1957), gedung ini difungsikan ganda: sebagai tempat kerja gubernur sekaligus Gedung Negara. Kini, sebagian area digunakan pula untuk ruang kerja wakil gubernur, pertemuan resmi, dan ruang penyimpanan BNPB di sisi timur. Bangunan utama Grahadi tidak banyak berubah, meski kini terdapat tambahan ruang pertemuan besar dan ruang transit presiden di sisi kanan dan kiri bangunan utama.

Gambar Pengembangan Gedung Pertemuan dan Ruang Rapat di timur dan barat Gedung Utama Grahadi. Sumber: Tata Bangunan Surabaya, 2019
Lalu, bagaimana dengan sayap barat Grahadi yang terbakar pada 30 Agustus 2025? Bagaimana nilai penting dan perubahan arsitektur di bangunan itu? Pertanyaan-pertanyaan itu akan dibahas dalam tulisan selanjutnya. (Bersambung…)
*Yayan Indrayana. Arsitek, tergabung sebagai Tim Kajian Pemugaran Gedung Negara Grahadi. Anggota Komunitas Begandring Soerabaia.
